NYHETER
PROJEKT
INFO
KONTAKT
NYHETER
PROJEKT
INFO
KONTAKT
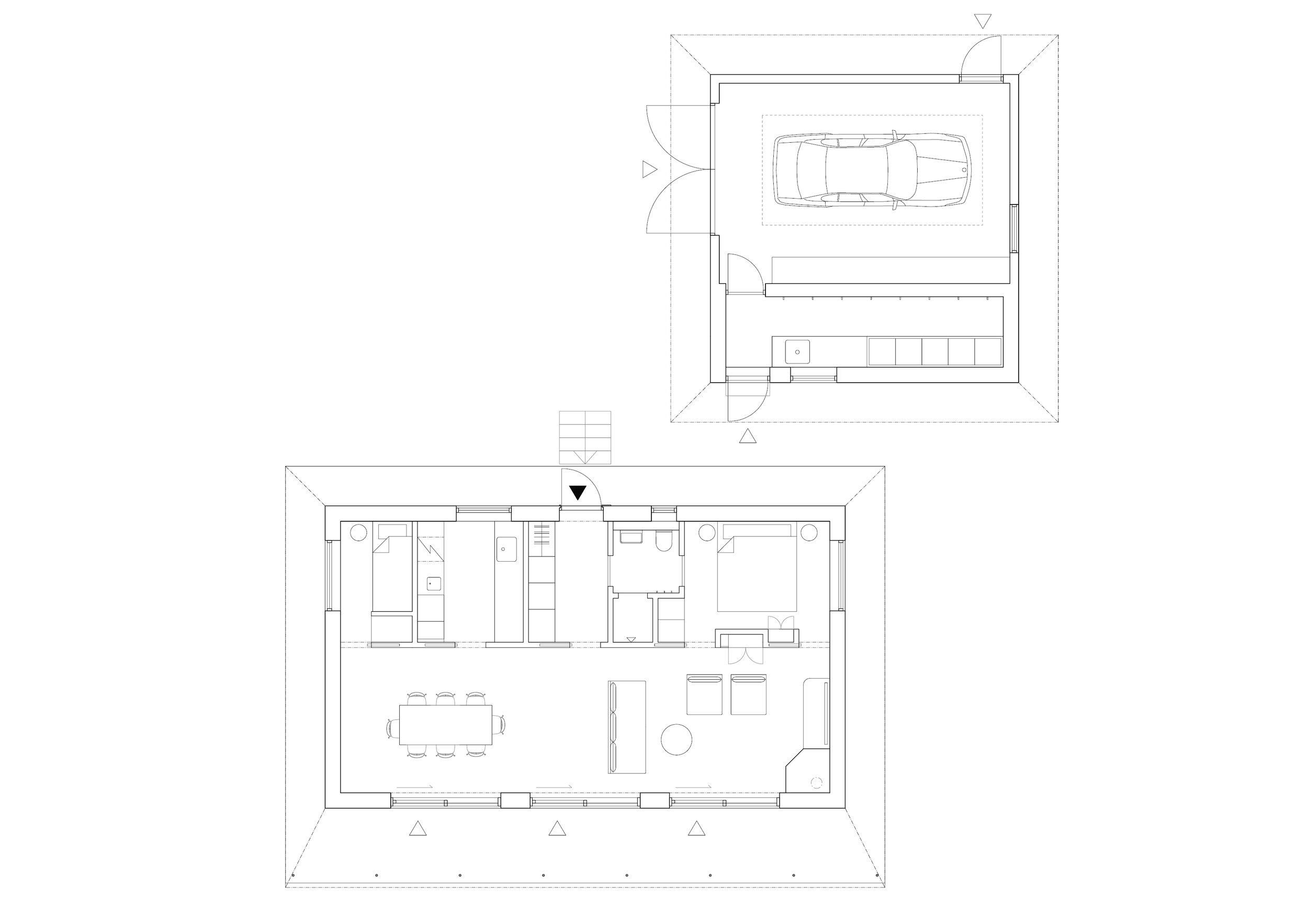
BLIDÖ
Blidö
Typ: Fritidshus
Storlek: 120 m²
Beställare: Privat
Plats: Blidö
Status: Under uppförande
År: 2023 - nu